Доска бесплатных объявлений BON.ua
Разместить объявление
    • мова
    • язык
  • Уведомления
  • message
    0
    Сообщения
  • favor
    0
    Избранное
  • login Войти
    • Главная
    • Недвижимость
    • Продажа коммерческой недвижимости
    • Офисные помещения
    • Офисные помещения - Киевская область
    • Офисные помещения - Киев
    • favor favor
    офісне приміщення Київ, Святошинський, Берестейський 67
    офісне приміщення Київ, Святошинський, Берестейський 67 2
    офісне приміщення Київ, Святошинський, Берестейський 67 3
    офісне приміщення Київ, Святошинський, Берестейський 67 4
    офісне приміщення Київ, Святошинський, Берестейський 67 5
    офісне приміщення Київ, Святошинський, Берестейський 67 6
    Фото: 1 из 6

    офісне приміщення Київ, Святошинський, Берестейський 67

    1 467 000 $
    Realty
    Все объявления автора
    Позвонить

    Город
    Киев
    Район
    Святошинский р-н
    Общая площадь
    489 м2
    Тип предложения
    От посредника
    Этаж
    1
    Этажность здания
    2
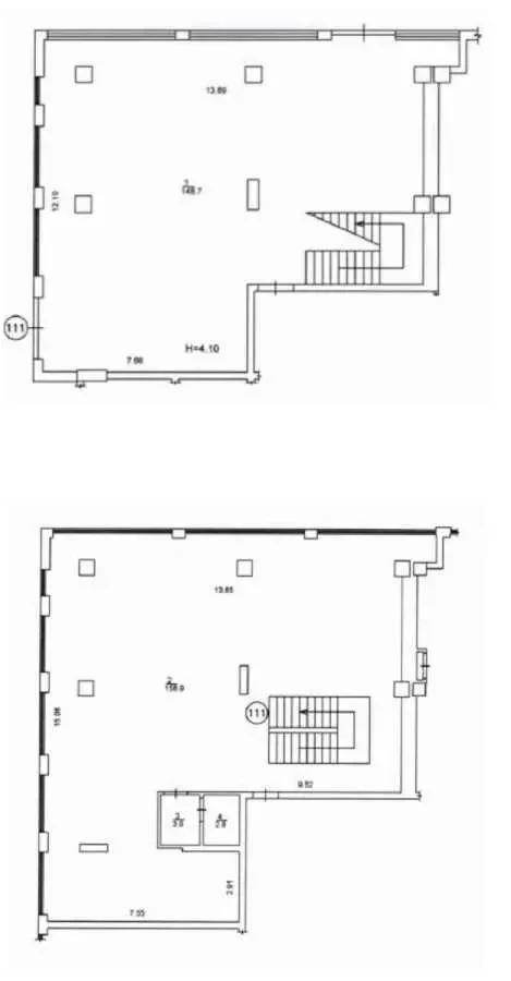
    ПРОДАМ нежитлові приміщення загальною площею 489 м2, пр-т Берестейський, 67, ЖК Сан Франціско. Приміщення з орендарем
    І приміщення 313,4 м2, розташоване на 1-му та 2-му поверхах з фасаду, вітринні вікна та вхід з проспекту
    ІІ приміщення 175,7 м2, розташоване на 2-му поверсі ЖК Сан Франціско, окремий вхід з двору
    Відеоспостереження зовнішнє та внутрішнє, протипожежна сигналізація, серверна кімната, кабельна мережа інтернет (опт-волокно). Кондиціонер. Приточно-витяжна система вентиляції. Централізоване опалення
    Зроблений сучасний і якісний ремонт 2023 р. Приміщення оснащене під медичну клініку. На даний час приміщення займають орендарі. Продаж приміщення з договором оренди. Підземний паркінг -1 поверх, можна використовувати як укриття
    Поруч: ст.м.Нивки (100 м), БЦ Брайн, МкДональдс, Ультра Маркет, відділення банків, пошти. ЖК Сан Франціско та Нивки парк з великою щільністю населення. Навпроти парк відпочинку Нивки, озеро
    Вартість - 3000 usd / m2. Загальна вартість = 1.467.000 usd
    Власник юридична особа, без комісії. Запрошую до співпраці сертифікованих ріелторів, комісійна виногорода 3 %
    Власник юридична особа, тел.: 096-050-66-50
    • № 102442358,
    • размещено 20.04.2026,
    • просмотров 23 (+23 Сегодня)

    Вас так же может заинтересовать

    VIP
    ТОП
    favorfavor
    офісне приміщення Київ, Шевченківський, Тарасівська 36

    3 676 900 грн.

    офісне приміщення Київ, Шевченківський, Тарасівська 36
    Пропонується до продажу офіс з новим ремонтом, в цегляному будинку, на першому поверсі, можна використовувати як для проживання, так і для офісу, дуже зручно для здачі в оренду.. приміщення вільного п...
    • Киев
    • 20.04.2026
    VIP
    ТОП
    favorfavor
    офісне приміщення Київ, Дарницький, Олександра Мишуги 10

    7 349 370 грн.

    офісне приміщення Київ, Дарницький, Олександра Мишуги 10
    ПРОДАМ своє нежитлове приміщення загал. площею = 118,5 m2. Орендний бізнес. Приміщення розташоване на 1-му поверсі Бізнес центра Паралель. БЦ має свій потужний генератор ! Завжди є світло, тепло, во...
    • Киев
    • 20.04.2026
    VIP
    ТОП
    favorfavor
    офісне приміщення Київ, Дарницький, Олександра Мишуги 10

    10 746 072,5 грн.

    офісне приміщення Київ, Дарницький, Олександра Мишуги 10
    Пропозиція від Власника: ПРОДАМ своє нежитлове приміщення загал. площею = 156,5 м2. Приміщення розташоване на 1-му поверсі, 4-х поверхового Бізнес центра. Завжди є світло, тепло, вода гаряча та холодн...
    • Киев
    • 20.04.2026
     
    Этот сайт использует cookies. Вы можете изменить настройки cookies в своём браузере. Узнать больше.
    logo

    Украинский сервис объявлений

    Все права защищены.

     © 2026

    Обратная связь

    Android

    iOS app

    • Про Нас
    • Правила
    • Политика конфиденциальности
    • Реклама на сайте
    • Карта регионов
    • Карта сайта